





















Cortenstahl Stützmauer
Stützmauer – gekanteter Cortenstahl 🌿
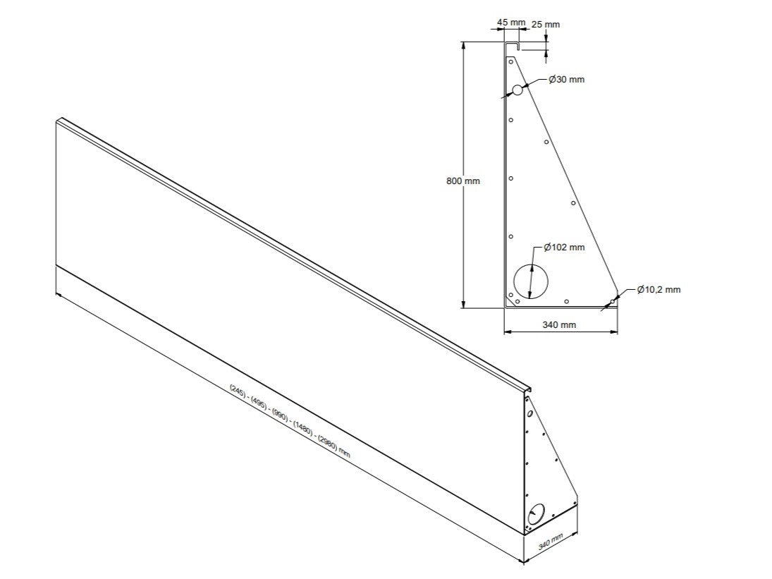
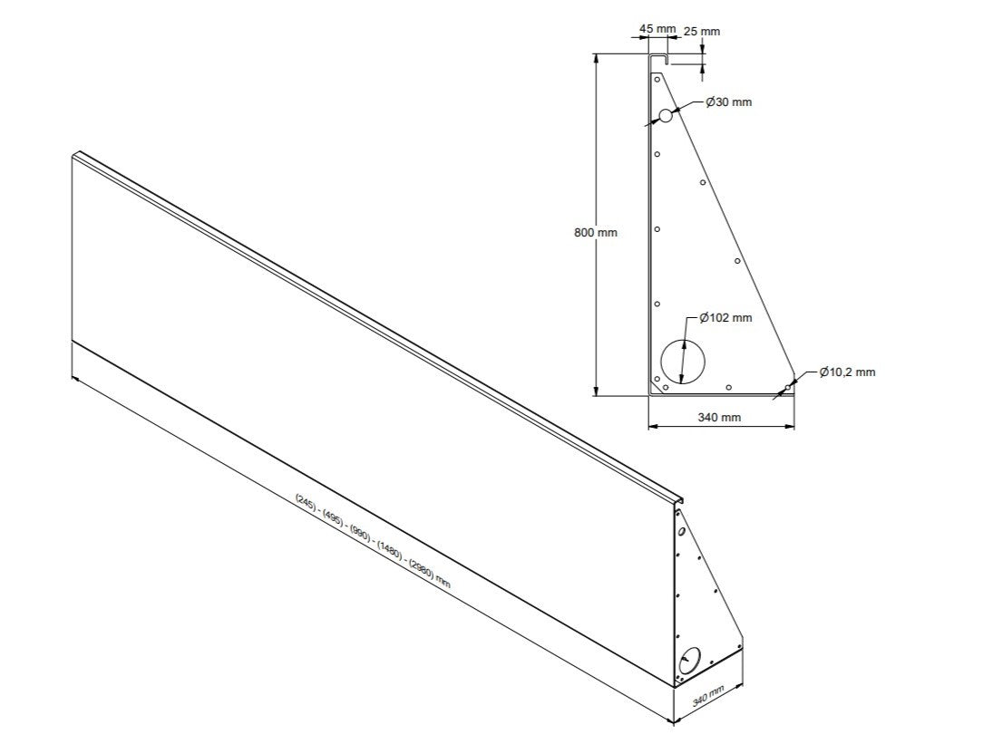
Schaffen Sie Struktur und Höhenunterschiede in Ihrem Garten mit einer starken und eleganten Stützmauer aus gekantetem 3 oder 5 mm Cortenstahl.
Die umgelegten Kanten sorgen für zusätzliche Stabilität und ein sauberes Finish, während die warme Rostpatina des Cortenstahls einen natürlichen und lebendigen Ausdruck verleiht, der mit der Zeit immer schöner wird.
Eine exklusive, wartungsfreie Lösung im dänischen Design – ideal für private Gärten, Parks und landschaftsarchitektonische Projekte.
✅ Dänisches Design und Produktion
✅ Hergestellt aus 3 oder 5 mm Cortenstahl
✅ Gekantete Konstruktion für Stabilität und glatte Kanten
✅ Modulares System – Längen und Höhen frei kombinierbar
✅ Wartungsfrei und äußerst langlebig
Material:
3 mm Cortenstahl (bis 60 cm Höhe) / 5 mm Cortenstahl (80–100 cm Höhe)
Design:
Gekantete Konstruktion mit präzisen Verbindungen für Stabilität und Ästhetik
Produktion:
Hergestellt in Dänemark in der eigenen Fabrik von byJEMA
Oberfläche:
Mit dünnem Ölfilm geliefert – die Patina entwickelt sich im Laufe der Zeit natürlich
Anwendung:
Für Geländeeinteilung, Höhenunterschiede und architektonische Gartengestaltung
Standardmaße:
| Höhe (cm) | Materialstärke | Tiefe (cm) | Längen (cm) | Gewicht pro Element | Drainageschlauch |
|---|---|---|---|---|---|
| 20 | 3 mm | 30 | 298 · 148 · 99 · 49,5 · 24,5 | ca. 2–26 kg | Ø82 mm |
| 40 | 3 mm | 30 | 298 · 148 · 99 · 49,5 · 24,5 | ca. 5–50 kg | Ø82 mm |
| 60 | 3 mm | 40 | 298 · 148 · 99 · 49,5 · 24,5 | ca. 10–75 kg | Ø102 mm |
| 80 | 5 mm | 40 | 298 · 148 · 99 · 49,5 · 24,5 | ca. 10–175 kg | Ø102 mm |
| 100 | 5 mm | 40 | 298 · 148 · 99 · 49,5 · 24,5 | ca. 25–210 kg | Ø102 mm |
💡 Nutzen Sie kurze Elemente (24,5 und 49,5 cm) für Ecken und Abschlüsse – und längere Module für klare, durchgehende Linien.
Cortenstahl ist völlig wartungsfrei.
Mit der Zeit bildet die Oberfläche eine natürliche, schützende Rostpatina, die Korrosion verhindert und einen warmen, organischen Ausdruck erzeugt.
🧽 Nach der Installation mit milder Seifenlösung leicht abwaschen, um den Ölfilm zu entfernen.
🌦️ Die Farbe entwickelt sich während der Bewitterung von kräftigem Orange zu tiefem Rostbraun.
💡 Zur Beschleunigung der Patinierung kann die Oberfläche leicht mit Salzwasser besprüht werden.
Eine Stützmauer aus Cortenstahl ist sowohl funktional als auch ästhetisch – perfekt für moderne Gärten und Grünanlagen.
Die warmen Töne des Stahls setzen Kontraste und verleihen Charakter, während die Konstruktion Langlebigkeit und Stärke gewährleistet.
🌿 Für Geländeeinteilungen und Höhenunterschiede verwenden
🏡 Mit Eck- und Geradmodulen kombinieren – für ein harmonisches Gesamtbild
🔥 Ideal in Kombination mit Pflanzkästen und Hochbeeten aus Cortenstahl
Wie werden die Stützmauern geliefert?
Alle Stützmauern werden auf Bestellung gefertigt und innerhalb von 5–10 Werktagen von byJEMA versendet.
Warum wird bei den höchsten Modellen 5 mm Stahl verwendet?
Um maximale Stärke und Stabilität bei Höhen von 80 und 100 cm zu gewährleisten.
Welche Vorteile bietet Cortenstahl?
• Außergewöhnliche Haltbarkeit – bis zu 8× langlebiger als normaler Stahl
• Ästhetische Rostpatina – natürlicher Schutz und warmer Ausdruck
• Geringer Pflegeaufwand – kein Anstrich oder Oberflächenbehandlung erforderlich
• Dänische Produktion – Präzision und Qualität bis ins Detail
Produktbeschreibung
Spezifikationen
Pflege
Inspiration
FAQ
Montageanleitung
Stützmauer – gekanteter Cortenstahl 🌿
Schaffen Sie Struktur und Höhenunterschiede in Ihrem Garten mit einer starken und eleganten Stützmauer aus gekantetem 3 oder 5 mm Cortenstahl.
Die umgelegten Kanten sorgen für zusätzliche Stabilität und ein sauberes Finish, während die warme Rostpatina des Cortenstahls einen natürlichen und lebendigen Ausdruck verleiht, der mit der Zeit immer schöner wird.
Eine exklusive, wartungsfreie Lösung im dänischen Design – ideal für private Gärten, Parks und landschaftsarchitektonische Projekte.
✅ Dänisches Design und Produktion
✅ Hergestellt aus 3 oder 5 mm Cortenstahl
✅ Gekantete Konstruktion für Stabilität und glatte Kanten
✅ Modulares System – Längen und Höhen frei kombinierbar
✅ Wartungsfrei und äußerst langlebig
Optionen auswählen






















Was unsere Kunden über uns sagen
⭐⭐⭐⭐⭐ Bewertungen
„Der Kundenservice ist erstklassig – sie sind unglaublich hilfsbereit, stehen für Fragen jederzeit zur Verfügung und legen größten Wert auf die Kundenzufriedenheit.
Insgesamt können wir byJEMA nur wärmstens empfehlen. Vom hervorragenden Kundenservice bis hin zu den langlebigen und schön gestalteten Produkten waren unsere Erfahrungen durchweg positiv. Wenn Sie nach Qualitätsprodukten für Ihren Garten suchen, ist byJEMA.dk definitiv einen Besuch wert.“
Cathrine und Michell
„Wir haben jetzt viel Corten im Garten, in verschiedenen Formen und mit unterschiedlichen Funktionen – alles von byJEMA. Die Qualität ist gut, die Montage einfach und der Preis angemessen!“
Das Design der Hochbeete von byJEMA mit der abgerundeten Kante an der Oberseite ermöglicht es uns, die Kinder sicher im Garten rund um die Produkte spielen zu lassen, ohne uns um scharfe Kanten sorgen zu müssen.“
Lisa Lausten
„Wir möchten byJEMA ⭐⭐⭐⭐⭐➕ für ihre wundervollen Produkte, das dänische Design und den ERSTKLASSIGEN Service geben.
Seitdem ist noch viel mehr von byJEMA in unseren Garten gekommen... Ja, uns hat das „Rostfieber“ gepackt🤣
ABER der Grund, abgesehen davon, dass wir all ihre supercoolen Produkte lieben, angefangen von Außenküchen, Feuerstellen, Bettkanten und vielem mehr, ist es bei unseren Investitionen in byJEMA absolut entscheidend, dass sie den absolut BESTEN Service bieten, den man sich als Kunde wünschen kann. Ich wage zu behaupten, dass Sie keinen besseren Service bekommen werden, als den das byJEMA-Team seinen Kunden bietet.“
Maria und Bo
„Wir können byJEMA.dk jedem wärmstens empfehlen, der hochwertige Pflanzgefäße, Beete usw. aus Stahl und einen Webshop mit fantastischem Service sucht.
Wir haben mehrmals bei byJEMA.dk eingekauft und jedes Mal haben die Produkte mit ihrem schönen Design und ihrer Qualität unsere Erwartungen übertroffen. Sie passen perfekt in unseren Garten und verleihen ihm den stilvollen Look, den wir gesucht haben.“
@ottoshave
Unser Versprechen